As Oy Rommakko | Perustiedot

Kohde
Nimi ja osoite

As Oy Rommakko
Rommakkokatu 5
90120 OULU

Perustettu

9.10.1954

Rakennuspaikka & Rekisteritiedot

Kunta:

Oulu

Kaupunginosa:

Hollihaka (IV)

Kortteli:

2

Tontti:

2

Y-tunnus:

0188433-8

Rakennuttaja

As Oy Rommakko

Suunnittelija

Uki Heikkinen (& Reino Arvola ja Seppo Valjus)

Sähkösuunnittelu

Dipl. Ins B. Lemström, Oulu Oy

LVI-suunnittelu

Oulu Osakeyhtiö

Pääurakoitsija

Rakennusyhtymä Halonen & Juntunen, Oulu 1

Sähköurakoitsija

Hammarin Sähkö Oy

LVI-urakoitsija

Oy Vesijohtoliike Huber Ab

Rakennuksia

3 (A, B ja C)

Kerroksia / rakennus

3-4 – puolikerrokset

Huoneistoja (ennen) 2000

62 kpl (21 kpl 42m2, 39 kpl 52 m2, 1 kpl 30m2, 1 kpl 64m2)

Huoneistoja 2000 (jälkeen)

61 kpl (21 kpl 42m2, 38 kpl 52 m2, 1 kpl 30m2, 1 kpl 116m2)

Muut tilat (alkuperäiset)2009 -putkiremontin yhteydessä muita tiloja järjesteltiin uudelleen ja käytöstä pois jääneet tilat otettiin uusiokäyttöön (B-kellarin koksivarasto)

Lämpökeskus + koksivarasto, B-kellari
Pesutupa + kuivaushuone, B-kellari
Saunaosasto, B
Ulkoiluvälinevarasto, A- ja C-talot
Askarteluhuone, A- ja C-talot
Huoneistovarasto (kylmävarasto, ”perunakellari”) A, B, C
Ullakkovarastot + pyykinkuivaustila, A, B, C
Liiketila, C-talo

Nykyinen käyttötarkoitus

Kohde on edelleen asuinkäytössä.

Omistus

As Oy Rommakko

Kaava

Asemakaava (06.03.1969 - UUSI vahvistettu 18.12.2015).
Tontti on osoitettu asuinrakennusten korttelialueeksi AK.

Kohteen tilatiedot

Kerrosala: 3900 m2
Tilavuus: 13262 m3

Rakennusoikeus

3900 k-m2 (asuin) + 650 k-m2 (muita)

Suojelu

2015 vahvistuneessa asemakaavassa tontti sai SR-20 -suojelumerkinnän joka pitää sisällään seuraavat määräykset:

Suojeltava rakennus. Rakennus on korjaus- ja muutostöiden yhteydessä korjattava sen kulttuurihistorialliset ja rakennustaiteelliset arvot säilyttäen. Julkisivukorjauksissa tulee käyttää alkuperäisiä tai niitä vastaavia materiaaleja. Sisätiloissa voidaan tehdä toiminnan vaatimia muutoksia. Korjaus- ja muutostoimenpiteistä tulee pyytää maakuntamuseon/museoviraston lausunto.

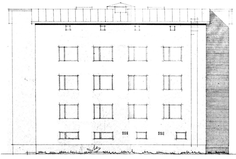
RHS

RHS on tehty liitteeksi kohteen asemakaavan muutokseen.  Lataa tästä RHS PDF-tiedostona luettavaksi >

 

Rakennustoimisto P. K. Juntunen (perustettu 1950) ja Rakennustoimisto P. P. Halonen Oy (perustettu 1952) yhdistyivät Rakennusyhtymä Halonen & Juntunen Oy:ksi, vuodesta 1963 alkaen Rakennusvoima Oy ja vuodesta1987 osa YIT -konsernia.

Alla kuva "Rommakon lasten" vierailusta 2016 entisessä kotipihassa.

rommakonlapset 2016

 

RHS julkisivut pohjoinen1

RHS julkisivut kadulle1

RHS julkisivut itaan1

 

asemakaava 2015